건너뛰기 메뉴



입찰 내역

입찰 내역

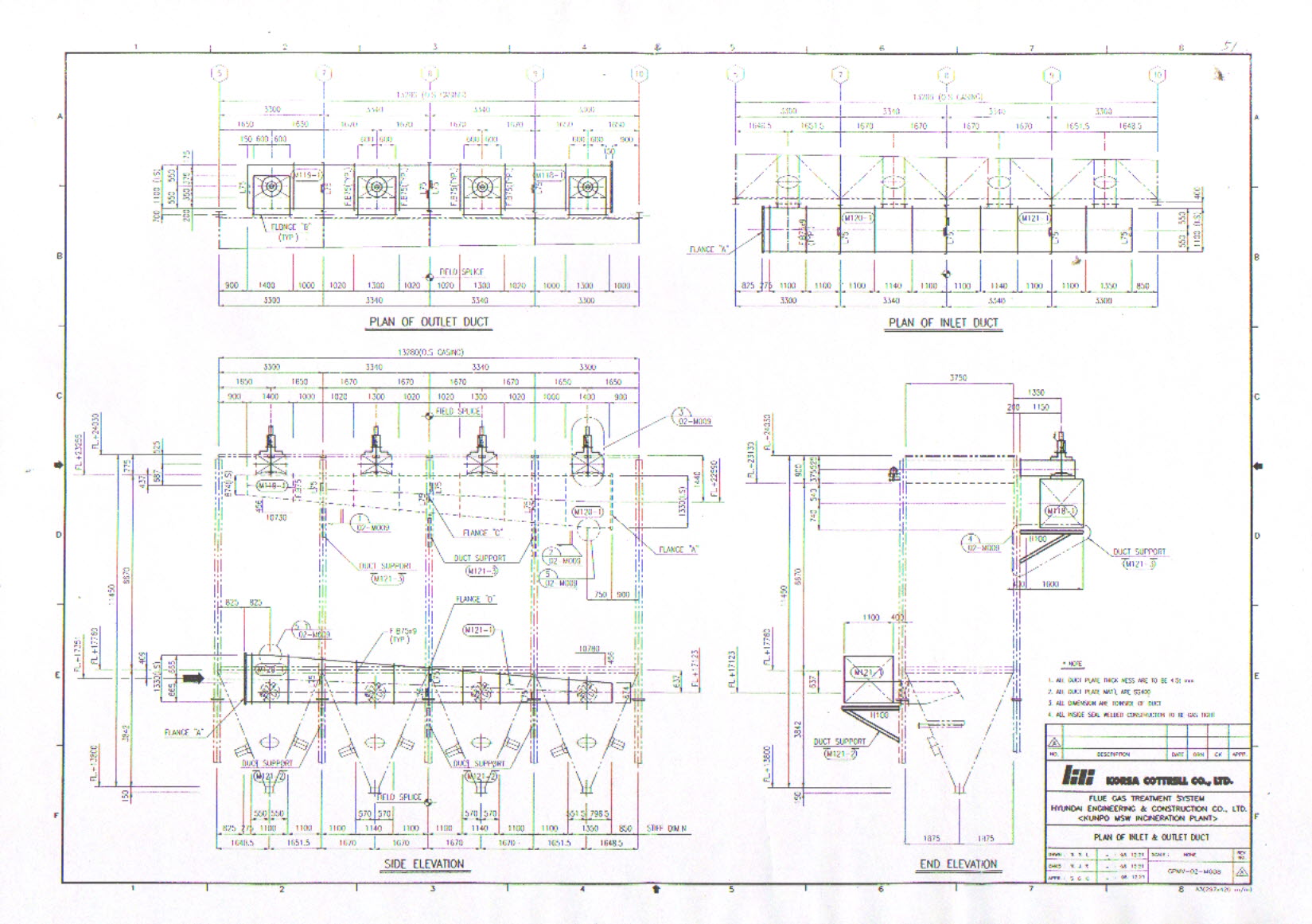
[소액수의 견적제출 공고] 소각 및 방지시설 덕트 제작 교체공사

작성자
등록일자
2013년 10월 7일 16시 28분 57초
조회
861

공고명 : 소각 및 방지시설 덕트 제작 교체공사 소액수의 견적제출 공고

 

> 조달청공고번호 : 제20131004475-00 호

  1. PDF 파일 소각시설 덕트 제작 교체공사 견적제출 공고문.pdf [ Size : 89.28KB , Down : 442 ] 다운로드
  2. PDF 파일 소각시설 덕트 제작교체 공사시방서.pdf [ Size : 93.99KB , Down : 541 ] 다운로드
  3. JPG 파일 덕트제작 교체공사범위 도면.JPG [ Size : 309KB , Down : 323 ] 미리보기 다운로드
  4. JPG 파일 SDR 후단에서 백필터 입구까지 덕트 제작도면.JPG [ Size : 359.08KB , Down : 341 ] 미리보기 다운로드
  5. JPG 파일 백필터 입구에서 바이패스 댐퍼 전단까지 제작도면.JPG [ Size : 371.46KB , Down : 229 ] 미리보기 다운로드

목록보기