건너뛰기 메뉴



입찰 내역

입찰 내역

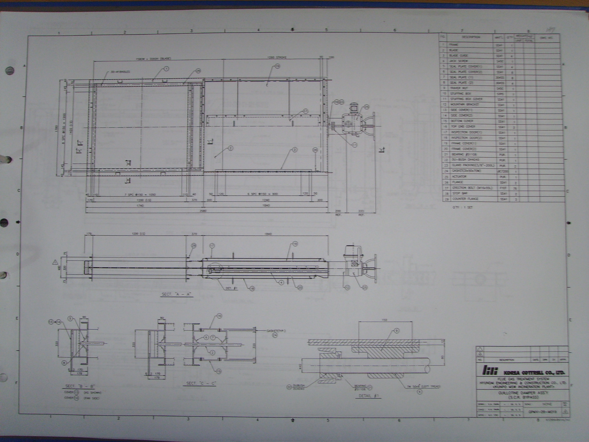
[입찰공고] SCR 바이패스 댐퍼 및 백필터 에어단관 보수공사 소액(수의) 견적제출 공고

작성자
등록일자
2009년 11월 17일 16시 33분 25초
조회
3,977

공고명 : SCR 바이패스 댐퍼 및 백필터 에어단관 보수공사 소액(수의) 견적제출 공고

 

○ 공고문 : 첨부문서 참조



○ 조달청공고번호 : 제20091110833-00호

  1. HWP 파일 SCR 바이패스 댐퍼 및 백필터 에어단관 보수공사 공고.hwp [ Size : 23.5KB , Down : 529 ] 다운로드
  2. HWP 파일 SCR 바이패스 댐퍼 및 백필터 상부 에어단관 보수공사시방서.hwp [ Size : 48KB , Down : 570 ] 다운로드
  3. JPG 파일 백필터 에어단관 도면.JPG [ Size : 1.45MB , Down : 253 ] 미리보기 다운로드
  4. JPG 파일 SCR By-pass Damper Assy.JPG [ Size : 808.58KB , Down : 223 ] 미리보기 다운로드
  5. ZIP 파일 SCR By-pass Damper 제작도.zip [ Size : 3.85MB , Down : 635 ] 다운로드

목록보기